四川耍耍逍遥论坛,南宁桑拿论坛官网入口,千桃园附近花店地址电话

欢迎来到河北江环水利机械有限公司官网!专注水利行业30年 · 集生产、销售、安装一体化的规模型水利机械厂家。

网站地图 XML地图 RSS订阅

联系方式

河北江环水利机械有限公司
联系人:卢经理
咨询热线:183-3099-2228
电 话:0319-4766548
传 真:0319-4766548
业 务QQ:1552771358
邮 编:055650
公司邮箱:jhshuili888@163.com
公司网址:m.lephndq.cn
公司地址:河北省邢台市新河县工
                  业园区(付兴庄村东)
       扫—扫,添加微信沟通询价

新闻资讯

抓斗式清污机系列

全自动清污机
所属分类:抓斗式清污机系列
咨询电话:
18330992228
简介:
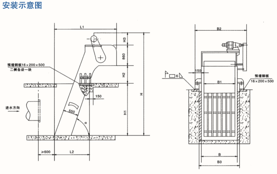
自动清污机安装指南: 清污机安装步骤:将清污机各段(上段栅体、中段栅体、下段栅体)及驱动装置(传动轴、轴承装置、减速机、护罩等)准备好。 先将下段栅体(连同链条、齿耙)用汽车吊吊运到洞口处,通过在上游面对栅体施加一定水平力,将其与铅垂面倾斜15°,沿轨道放下,通过清污机锁定装置锁定。 将中段栅体(连同链条、齿耙)吊运到其洞口处,同样将其倾斜15°,与下段

自动清污机安装指南:

清污机安装步骤:将清污机各段(上段栅体、中段栅体、下段栅体)及驱动装置(传动轴、轴承装置、减速机、护罩等)准备好。

先将下段栅体(连同链条、齿耙)用汽车吊吊运到洞口处,通过在上游面对栅体施加一定水平力,将其与铅垂面倾斜15°,沿轨道放下,通过清污机锁定装置锁定。

将中段栅体(连同链条、齿耙)吊运到其洞口处,同样将其倾斜15°,与下段栅体在边梁联接处对齐,螺栓联接,并将牵引链条联好,抽出链条锁定销,中段与下段栅体联成一体,将下段锁定打开,至中段锁定处锁定。

在支铰固板和清污机上段边梁上现场焊接支铰。

将驱动装置各部件吊运到清污机正确位置,螺栓联接,接好牵引链条,装上驱动链条,各自张紧到工作状态,装好护罩。

现场调试清污机连续运行不低于8小时,及时处理存在的问题。

水电站清污机_全自动清污机_水电站清污机价格_水电站清污机厂家_河北水电站清污机生产厂家

image.png

image.png


上一篇:细格栅除污机
下一篇:没有了
主站蜘蛛池模板: 达拉特旗| 太原市| 武义县| 台东县| 大化| 德清县| 黔西县| 页游| 万荣县| 道真| 甘德县| 光山县| 怀集县| 都昌县| 鄱阳县| 汝城县| 曲松县| 伊吾县| 宝丰县| 阿拉善左旗| 玉环县| 兴和县| 黄平县| 白山市| 昂仁县| 赤峰市| 浠水县| 赤水市| 呼和浩特市| 黄大仙区| 溧水县| 恭城| 安多县| 绵阳市| 沁源县| 阿尔山市| 富川| 鸡东县| 定结县| 米脂县| 郯城县|